imobilex utilizează fişiere de tip cookie pentru a personaliza și îmbunătăți experiența ta pe Website-ul nostru. Înainte de a continua navigarea pe Website-ul nostru te rugăm să aloci timpul necesar pentru a citi și înțelege conținutul Politicii de Cookie. Prin continuarea navigării pe Website-ul nostru confirmi acceptarea utilizării fişierelor de tip cookie conform Politicii de Cookie.

Apartament 2 camere, 64mp, mobilat, zona Abatorului/Parc Poligon

Floresti

129.000€
ID: P206110 9 TOP

IMOBILEX vă propune spre vânzare un apartament cu 2 camere , mobilat si utilat , situat în zona foarte accesibila, zona străzii Abatorului.
In apropiere se alfă mijloc de transport in comun la 4 minute distanță, magazine alimentare , grădiniță , Parcul Poligon etc.
Apartamentul este situat la parter înalt.
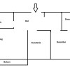
Compartimentarea este următoarea:
-hol;
-bucătărie separată ;
-living ;
-dormitor cu dressing propriu;
-baie;
-balcon.
Suprafața utilă este 64mp +4mp balcon.
Optional se poate achiziționa parcare la pretul de 4000€.
Apartamentul se vinde complet mobilat si utilat cu electrocasnice si mobilier de calitate, fără a necesita investiții suplimentare.
Recomandăm cu drag acest apartament pentru un cuplu dar și pentru investitie datorită zonei foarte accesibile.
Pentru mai multe detalii și programarea unei vizionari ne puteți contacta telefonic!
P206110

  • Nr. camere:2
  • Nr. dormitoare:1
  • S. utila:64.00 mp
  • S. balcoane:4.00 mp
  • S. utila totala:68.00 mp
  • S. construita:75.00 mp
  • Comp.:Semidecomandat
  • Confort:Lux
  • Etaj:Parter
  • Nr. bucatarii:1
  • Nr. bai:1
  • Nr. balcoane:1
  • Nr. parcari:1
  • Structura:Caramida
  • Tip imobil:Bloc
  • Orientare:Est
Utilitati
  • Utilitati generale: Curent, Apa, Canalizare, Gaz, Acces internet
  • Sistem incalzire: Centrala proprie, Calorifere
Finisaje
  • Izolatii: Izolatie Exterior
  • Pereti: Vopsea lavabila, Faianta
  • Podele: Parchet, Gresie
  • Ferestre: Ferestre Termopan
  • Usa intrare: Usa intrare Metal
  • Usa interior: Usa interior Celulare
Dotari
  • Spatii utile: Dressing
  • Bucatarie: Bucatarie Mobilata, Bucatarie Utilata
  • Contorizare: Apometre, Contor gaz
  • Mobilat: Complet mobilat
  • Imobil: Interfon

Loredana Cîmpean

Agent

Contacteaza-ma

0748707011
Vezi telefon Chat