imobilex utilizează fişiere de tip cookie pentru a personaliza și îmbunătăți experiența ta pe Website-ul nostru. Înainte de a continua navigarea pe Website-ul nostru te rugăm să aloci timpul necesar pentru a citi și înțelege conținutul Politicii de Cookie. Prin continuarea navigării pe Website-ul nostru confirmi acceptarea utilizării fişierelor de tip cookie conform Politicii de Cookie.
Acest anunt nu mai este activ !

Apartament 3 camere, ansamblu premium, zona Cetatii

Floresti

82.500€
ID: P105460 52 vandut

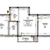
Imobilex va propune spre vânzare apartament de 3 camere semifinisat în zona foarte bună aproape de stația de autobuz, magazine. Compartimentarea este următoarea:
-hol;
-living open space cu bucătărie;
-dormitor;
-birou ( dormitor);
-baie;
- balcon.
Suprafața utilă este 59,90mp+ 3,70mp balcon.
Apartamentul este situat la etajul 3 al unui imobil P+4.
Este locuinta ideala pentru o familie sau pentru investitie. Pentru mai multe detalii si programarea unei vizionari, contactați ne puteți contacta telefonic! P105459

  • Nr. camere:3
  • Nr. dormitoare:2
  • S. utila:59.90 mp
  • S. balcoane:3.70 mp
  • S. utila totala:63.60 mp
  • S. construita:72.00 mp
  • Comp.:Semidecomandat
  • Etaj:Etaj 3
  • Nr. bucatarii:1
  • Nr. bai:1
  • Nr. balcoane:1
  • Structura:Caramida
  • Tip imobil:Bloc
  • Regim inaltime:P+4
Utilitati
  • Utilitati generale: Curent, Apa, Canalizare, Gaz, Acces internet, Fibra optica, Utilitati in zona
  • Sistem incalzire: Centrala proprie, Centrala imobil, Incalzire pardoseala
Finisaje
  • Izolatii: Izolatie Exterior
  • Ferestre: Ferestre Termopan
Dotari
  • Contorizare: Apometre, Contor caldura, Contor gaz
  • Imobil: Interfon, Videointerfon

Sebastian Cindroi

Contacteaza-ma