



Cauți o casă spațioasă, bine compartimentată și cu curte proprie? Această proprietate din Dezmir poate fi exact ce îți dorești.
120 mp utili + teren de 350 mp, perfect pentru familie, relaxare și intimitate.
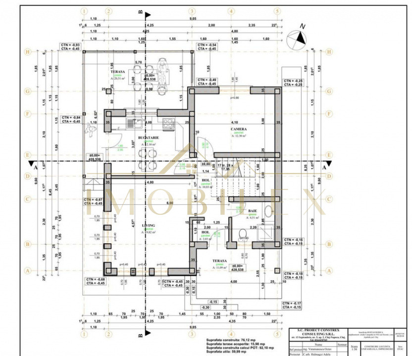
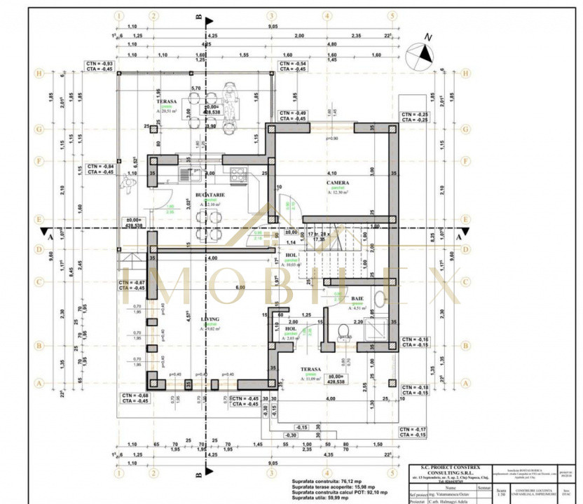
Compartimentare practică: Parter: bucătărie separată cu ieșire pe terasă de 20 mp, living luminos, cameră (birou/dormitor), baie + terasă de 11 mp
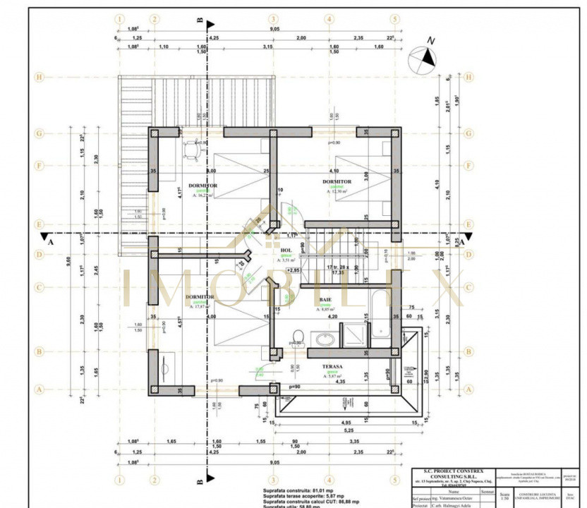
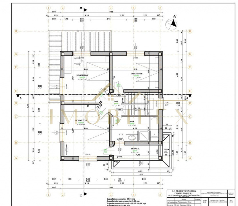
Etaj: 3 dormitoare, baie, terasă de 4,35 mp
✔ Casă individuală
✔ Compartimentare ideală pentru familie
✔ Spațiu exterior generos
Sună acum pentru detalii sau vizionare – astfel de proprietăți se vând rapid!
ID: P2260686