

IMOBILEX vă propune spre vânzare o casă tip duplex de 4 camere, situată in zonă frumoasă și cu un view superb, iar accesul este facil spre mall’ul Vivo.
Toate utilitățile sunt racordate, gaz, curent, apă.
Se predă la stadiul semifinisat interior și finisat exterior la prețul afișat și este inclus TVA.
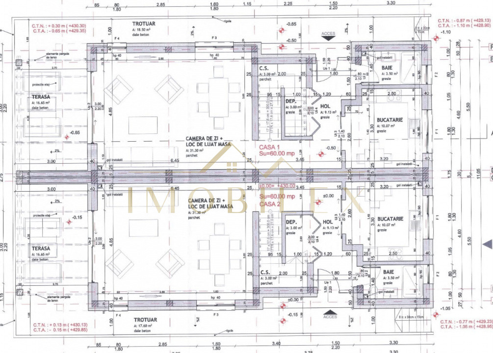
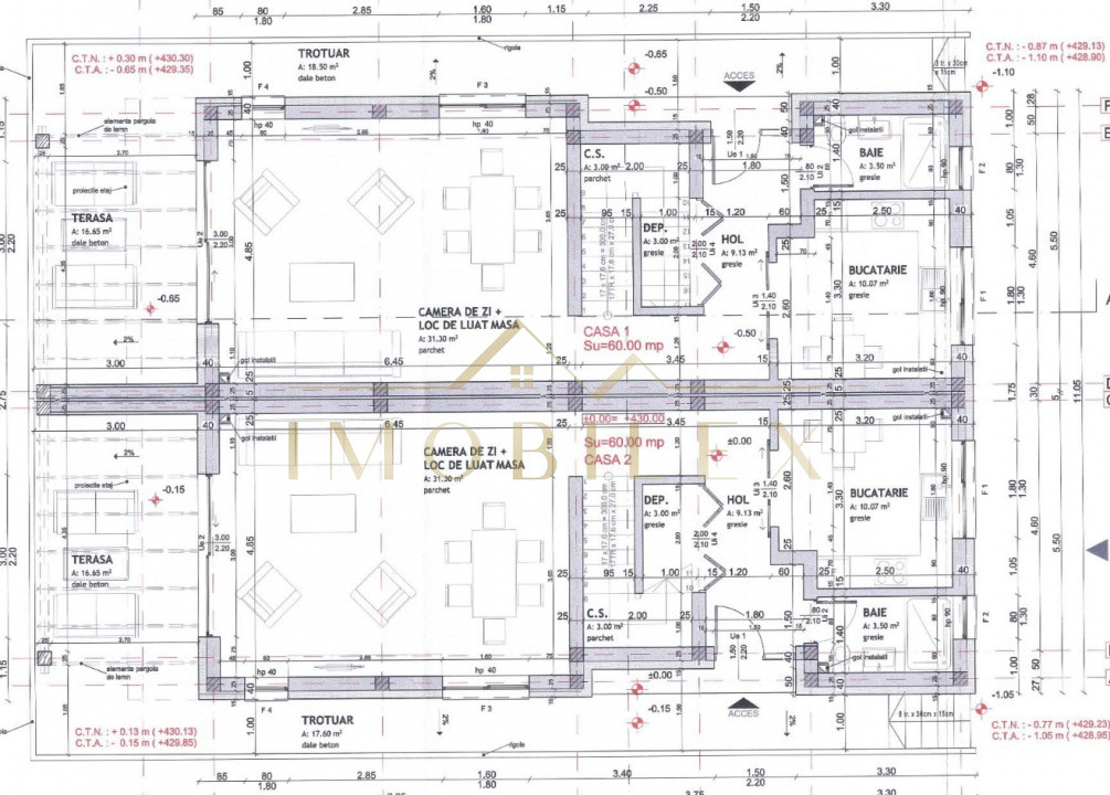
Suprafața casei este 119mp+ 225 mp+ 60 mp 2 terase.
Regimul de înălțime este P+E+ terasă circulabilă.
Compartimentarea este următoarea:
-hol;
-Living;
-bucătărie;
-baie;
-hol;
-3 dormitoare;
-2 bai;
-2 terase.
Sistemul de încălzire este realizat prin centrală termică proprie cu încălzire prin pardoseală.
Casa dispune de 2 locuri de parcare.
Este ideală această casă pentru o familie cu copii. Pentru mai multe detalii și programarea unei vizionari ne puteti contacta telefonic. P208450